
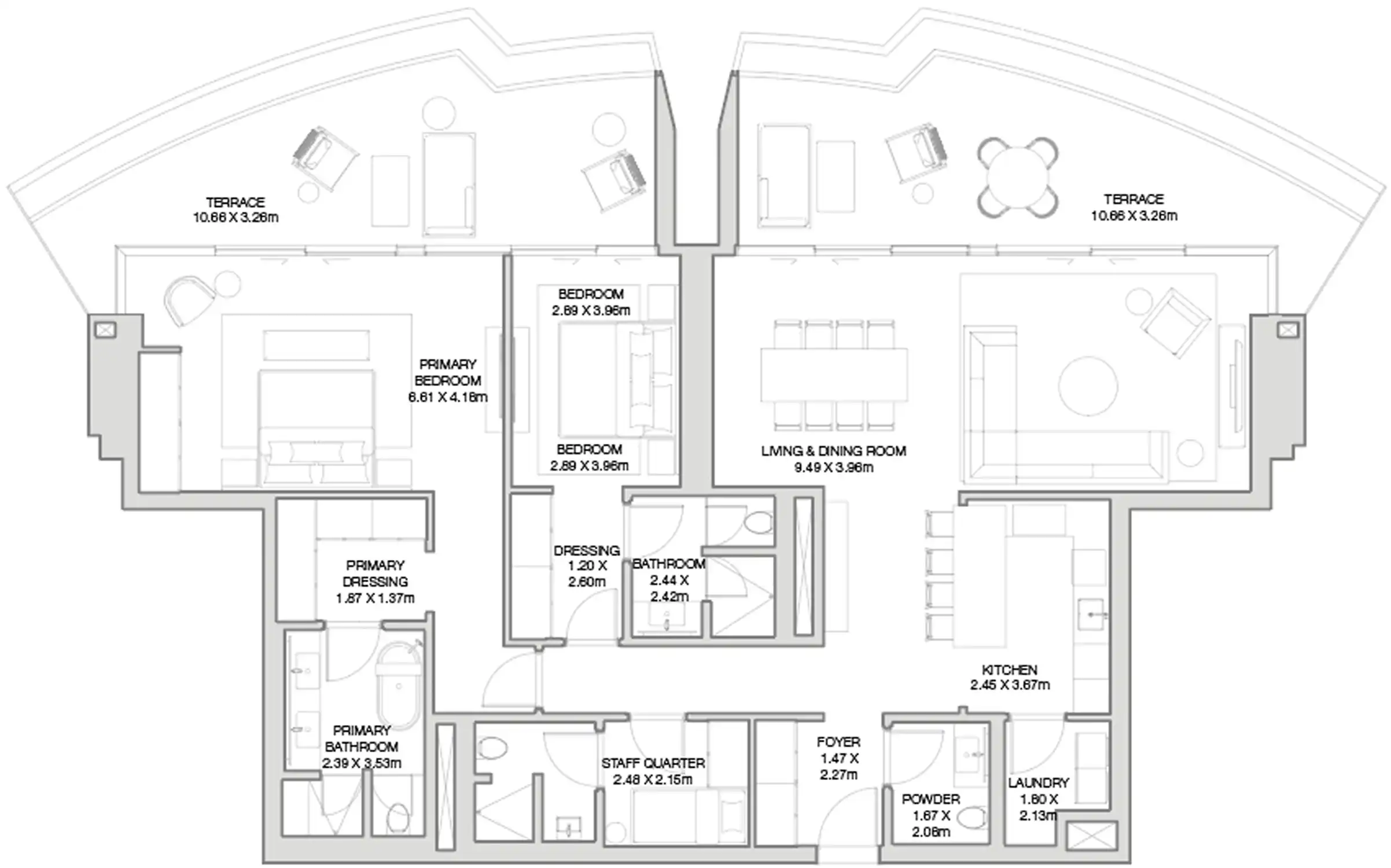
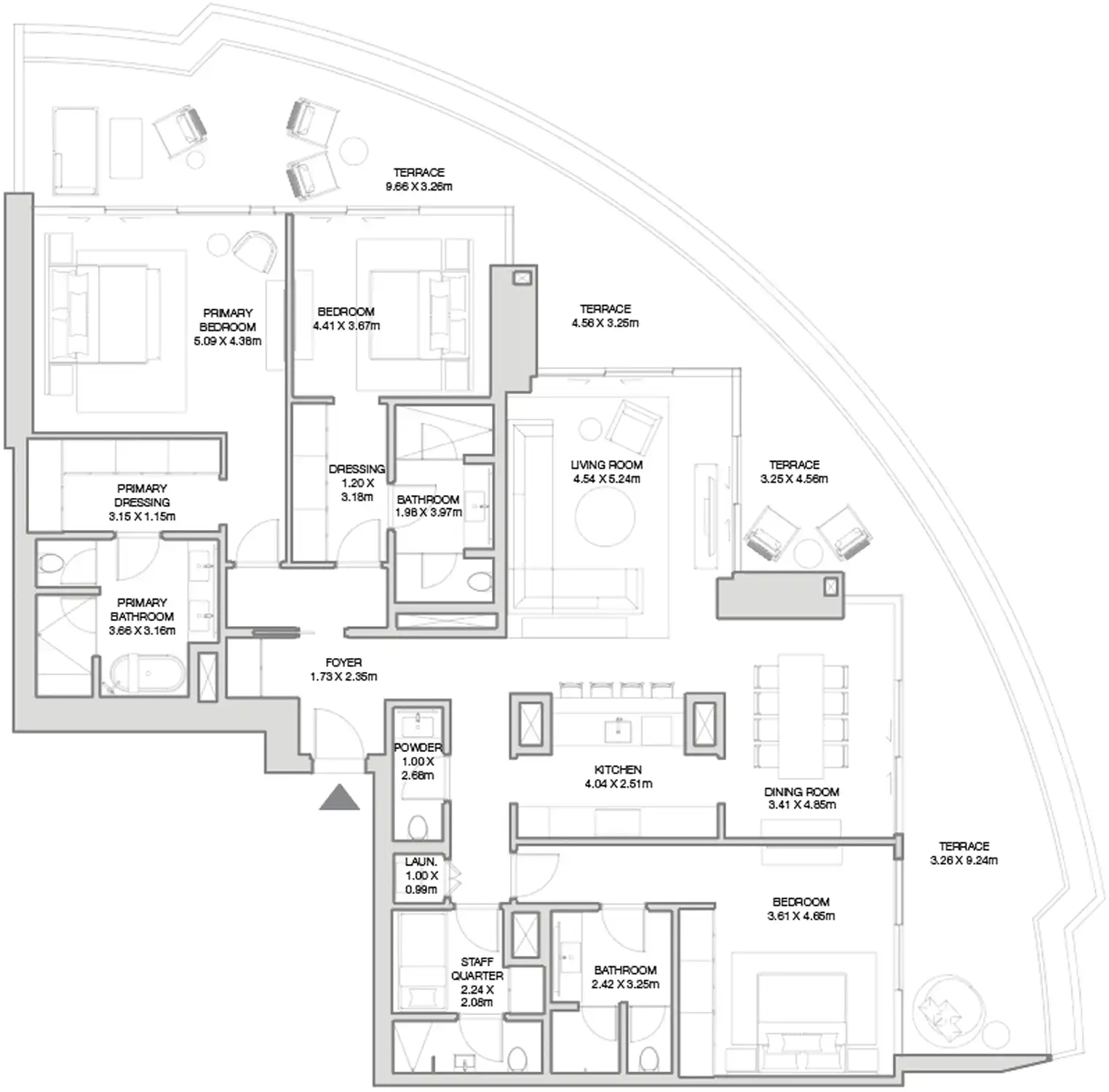
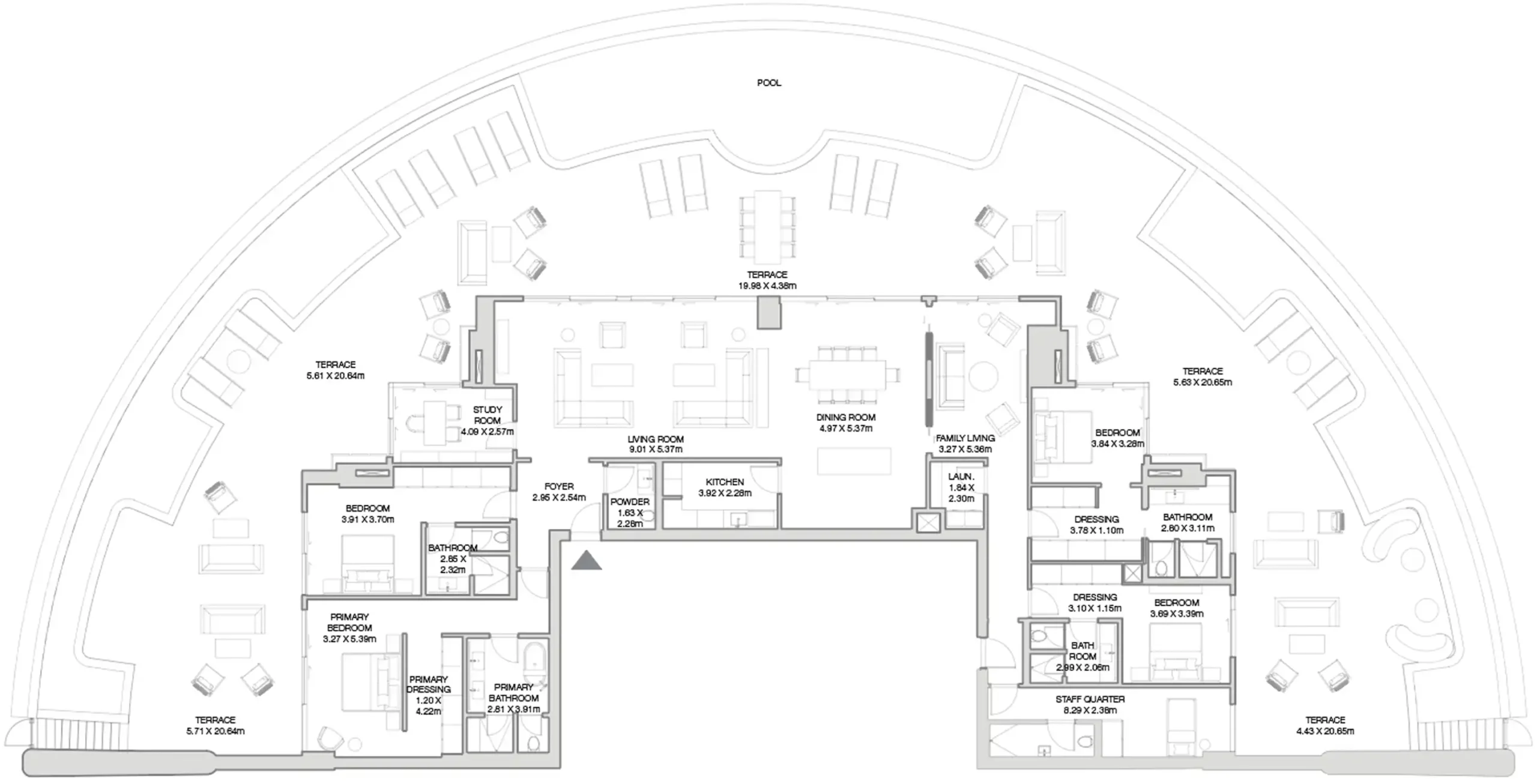
Edition Residences by H&H introduces branded luxury living in Dubai, bringing the globally renowned EDITION hospitality concept into a refined residential offering. Developed by H&H, it blends bespoke interiors, hotel-style services, and curated lifestyle experiences.
